您現在所在位置:大田閥門 >> 襯氟閥門(襯里閥門)
J45Fs直流式襯氟塑料截止閥,專用于控制強腐蝕性介質,閥體內腔表面覆有可供選擇的各種氟塑料,適用于不同工作溫度和流體管路。具有強度高、耐腐蝕性能好的特點。
設計與制造:GB12235
結構長度:GB12221(1系列)
法蘭連接尺寸:GB4216 JB78
J45Fs直流式襯氟塑料截止閥專用于控制強腐蝕性介質,閥體內腔表面覆有可供選擇的各種氟塑料,適用于不同工作溫度和流體管路。具有強度高、耐腐蝕性能好的特點。
適用溫度:≤80℃、≤100℃、≤120℃、≤150℃、(可按照襯里材料) 壓力等級:0.6、1.0、1.6
襯里層:電火花檢測
實驗與檢驗按GB/T13927標準
公稱壓力:PN閥體:PN×1.5 密封:PN×1.1
閥體:鑄鐵、碳鋼 不銹鋼 閥蓋:鑄鐵、碳鋼 不銹鋼 襯里:氟塑料
閥瓣:碳鋼 、不銹鋼,完全包覆氟塑料
閥桿:碳鋼、不銹鋼,部分包覆氟塑料 電動裝置:組合件

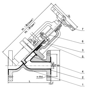
1、閥體、2、閥體襯里 3、閥蓋4、閥瓣
5、壓蓋子6、閥桿7、手輪
| 公稱通徑 | 公稱壓力 | 工作壓力 | L | D | D1 | n-Фd | f | H1 | H2 | D0 | 質量 |
|---|---|---|---|---|---|---|---|---|---|---|---|
| 25 | 1.6 1.0 | 1.6 | 160 | 100 | 75 | 4-2 | 2 | 2595 | 280 | 120 | 4.5 |
| 32 | 200 | 120 | 90 | 4-14 | 2 | 140 | 13 | ||||
| 40 | 200 | 130 | 100 | 4-14 | 3 | 320 | 353 | 140 | 9.5 | ||
| 50 | 230 | 140 | 110 | 4-14 | 3 | 342 | 375 | 160 | 16.5 | ||
| 65 | 1.0 | 290 | 160 | 130 | 4-14 | 3 | 180 | ||||
| 80 | 310 | 190 | 150 | 4-18 | 3 | 467 | 520 | 200 | 32 | ||
| 100 | 350 | 210 | 170 | 4-18 | 3 | 532 | 600 | 280 | 45 | ||
| 125 | 400 | 240 | 200 | 8-18 | 3 | 604 | 685 | 280 | 67 | ||
| 150 | 480 | 265 | 225 | 8-18 | 3 | 635 | 728 | 320 | 89 | ||
| 200 | 0.6 | 495 | 320 | 280 | 8-18 | 4 | 735 | 866 | 400 | 145 | |
| 250 | 622 | 375 | 335 | 12-18 | 4 | ||||||
| 300 | 698 | 4 |
溫馨提示:
本文中所有文字、數據、圖片均只適用于參考。需要查看更多的J45Fs直流式襯氟塑料截止閥性能參數、結構尺寸參數、價格等詳情,或要求印刷樣本,請聯系我們。
主營產品:氣動調節閥 - 電動調節閥 - 自力式調節閥
版版權所有 © 上海大田閥門管道工程有限公司
地址:上海市浦東新區川宏路528號宏圖大樓5樓








