您現在所在位置:大田閥門 >> 襯氟閥門(襯里閥門)
設計與制造:GB12237
結構長度:GB12221
法蘭連接尺寸:JB78
QF41Fs放料球閥專用于控制強腐蝕性介質,閥體內腔表面覆有可供選擇的各種氟塑料,適用于不同工作溫度和流體管路。具有強度高、耐腐蝕性能好的特點。
適用溫度:≤100℃、≤120℃、≤150℃、(可按照襯里材料)
壓力等級:0.6、1.0、1.6
襯里層:電火花檢測
實驗與檢驗按GB/T13927標準
公稱壓力:PN閥體:PN×1.5 密封:PN×1.1 低壓密封:0.4~0.7MPa
閥體:鑄鐵、碳鋼 端蓋:鑄鐵、碳鋼 襯里:FEP 密封圈:PTFE
球體:碳鋼完全包覆氟塑料 填料:PTFE 手柄:碳鋼
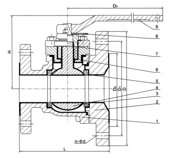
1、閥體、2、端蓋3、襯里4、球閥板5、四氟圈6、填料函7、壓子8、定位板9、手柄

| 公稱通徑 | L | D | D1 | D2 | n-Фd | H | D0 | ||||
|---|---|---|---|---|---|---|---|---|---|---|---|
| 0.6 | 1.6 | 0.6 | 1.6 | 0.6 | 1.6 | 0.6 | 1.6 | ||||
| 40/65 | 130 | 145/160 | 145/180 | 110/130 | 110/145 | 85/110 | 85/120 | 4-18/4-14 | 4-18/4-18 | 110 | 200 |
| 50/80 | 160 | 160/185 | 160/195 | 125/150 | 125/160 | 100/125 | 100/135 | 4-18/4-18 | 4-18/8-18 | 130 | 250 |
| 50/100 | 160 | 160/205 | 160/215 | 125/170 | 125/180 | 100/145 | 100/155 | 4-18/4-18 | 4-18/8-18 | 130 | 250 |
| 50/125 | 160 | 160/235 | 160/245 | 125/200 | 125/210 | 100/175 | 100/185 | 4-18/8-18 | 4-18/8-18 | 130 | 250 |
| 80/125 | 200 | 195/235 | 195/245 | 160/200 | 160/210 | 135/175 | 135/185 | 4-18/8-18 | 4-18/8-18 | 184 | 400 |
| 80/150 | 200 | 195/260 | 195/280 | 160/225 | 160/240 | 135/200 | 135/210 | 4-18/8-18 | 4-18/8-23 | 184 | 400 |
溫馨提示:
本文中所有文字、數據、圖片均只適用于參考。需要查看更多的QF41Fs放料球閥性能參數、結構尺寸參數、價格等詳情,或要求印刷樣本,請聯系我們。
主營產品:氣動調節閥 - 電動調節閥 - 自力式調節閥
版版權所有 © 上海大田閥門管道工程有限公司
地址:上海市浦東新區川宏路528號宏圖大樓5樓
